| A AMCA - Associação Internacional de Controle e Movimentação do Ar define as seguintes posições construtivas internacionalmente: |
 |
 |
Arranjo 1 SWSI:
Para acionamento por correias
Rotor em balanço
Dois mancais ou mancal monobloco na base |
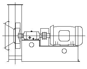
Arranjo 12 SWSI:
Para acionamento por correias
Rotor em balanço
Dois mancais ou mancal monobloco na base
Motor montado na base única |
 |
 |
Arranjo 4 SWSI
Para acionamento direto
Rotor em balanço montado no eixo do motor |
Arranjo 8 SWSI
Para acionamento direto por motor biapoiado |
 |
 |
Arranjo 3 SWSI
Para acionamento por correias
Rotor biapoiado |
Arranjo 3 DWDI
Para acionamento por correias
Rotor biapoiado |
 |
 |
Arranjo 7 SWSI
Para acionamento direto, com rotor biapoiado |
Arranjo 7 DWDI
Para acionamento direto, com rotor biapoiado |